Emoldurada pela natureza
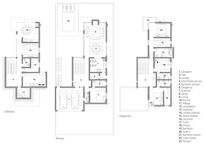
Com traços contemporâneos, a casa é setorizada em três pavimentos, assim aproveita melhor a topografia do lote, com a vantagem de valorizar a bela vista para o vale.


Arejada, a casa tem entrada pelas duas laterais, permitindo acessar diretamente a área de lazer. Além disso, o jardim mantém a harmonia com a arquitetura moderna.
"A inspiração para o projeto é baseada em uma arquitetura modernista, conceito traduzido pela forma dos beirais, aplicação de janelas de quina e pelo uso de linhas geométricas na fachada"
Aos poucos, todos os desejos ganharam formas concretas. Os recursos naturais são otimizados graças às amplas aberturas e aos painéis de vidro posicionados na face posterior do terreno, valorizando a vista do vale. Além disso, a propriedade conta com sistema de aquecimento solar.
Na manutenção, a praticidade é garantida pela escolha dos acabamentos. “Todos os pisos são em porcelanato para facilitar a limpeza, inclusive nas suítes, com aplicação de um modelo que reproduz madeira para obter um clima mais acolhedor, sem deixar de lado a ideia inicial”, completa Glauco.
Com 350 m² e um declive acentuado, o terreno exigiu dinamismo na distribuição dos ambientes. “Propus uma setorização vertical, destinando o andar superior à ala íntima, o térreo ao espaço social e parte da área de serviço, localizada também no pavimento inferior, juntamente com o lazer”, explica o arquiteto. Além de bem dividida, a casa recebeu acessos independentes, assim os três níveis podem ser usados separadamente, mesmo estando integrados.

A circulação vertical interna, composta pela escada de mármore e guarda- corpo em aço inox, é beneficiada com o amplo pano de vidro, que cobre os três níveis da casa.

Privilegiada pela vista do vale, a integração entre as salas de jantar e estar proporciona o uso comum da lareira, revestida de mármore carrara e com duto aparente em aço.
Entre as solicitações dos clientes havia um pedido especial do proprietário, que, como bom apreciador de vinhos, desejava a construção de uma adega em contato com a terra e totalmente na sombra, com as paredes protegidas do sol. A solução foi implantar a adega no nível inferior, praticamente enterrada e utilizando as paredes como arrimo para segurar a terra.
Convencional, a construção é feita com blocos cerâmicos e estrutura de concreto armado, revestido com massa texturizada na parte externa. Combinadas, as esquadrias, em alumínio com pintura eletrostática branca, ajudam a delinear as formas geométricas da arquitetura modernista.
Além disso, a fachada revela um elemento estético importante, a parede lateral com tonalidade escura. “É um pilar servindo como sustentação para a casa, como se fosse o tronco de uma árvore escorando seus galhos”, explica o arquiteto.

| Para garantir praticidade às tarefas diárias, a cozinha é disposta em formato de “U“, com pastilha na parede e porcelanato (60 x 60 cm) da Portobello no chão. | Divididas pela porta de correr em madeira, a sala de jantar e a cozinha utilizam o mesmo porcelanato (60 x 60 cm) com tonalidade bege, da Portobello. | Parte da suíte principal, o banheiro recebeu detalhes em pastilha e duas janelas basculantes nas laterais da banheira, que fornecem iluminação natural ao espaço. |
Detalhes do projeto
Área terreno: 350 m²
Área construída: 320 m²
Custo total da obra: R$ 480.000
Tempo de execução da obra: 12 meses
Tempo de execução do projeto: 5 meses


A posição em quina da sacada permite visualizar uma das entradas da casa e toda a área de lazer, além de valorizar a entrada de luz e ventilação natural na suíte.

Localizado ao lado da área gourmet, no pavimento inferior, o home theater tem forro em gesso acartonado e porcelanato com tonalidade bege no chão e rodapé.
Projeto: Glauco Rocha
Revestimentos: Elizabeth e Portobello
https://revistacasaeconstrucao.uol.com.br/ESCC/Edicoes/98/artigo297961-3.asp
